823 E San Lucas Road, Palm Springs, CA 92264
823 E San Lucas Road
Listed by Gregg Fletcher with Compass (760) 844-0110

823 E San Lucas Road

823 E San Lucas Road, Palm Springs, CA

$1,435,000

HIGHLIGHTS
  • 3 Beds
  • 3 Full Baths
  • 0.27 Acres Lot
  • 1,711 Sq.Ft. Living
  • 1958 Year Built
  • Sold Status
  • 219137183DA MLS® ID
Experience the allure of iconic mid-century modern design with this masterfully crafted home by renowned architect Hugh M. Kaptur, located at 823 E. San Lucas Road, Palm Springs. This architectural gem offers a harmonious blend of historical authenticity and modern convenience. Mr. Kaptur's distinctive style of Organic Desert Modernism is beautifully encapsulated in this residence, designed to complement the natural desert landscape seamlessly. Known for his ability to harmonize structures with their surroundings, Kaptur's work on this property is characterized by thoughtful integration and respect for the natural environment. Step inside to discover two of the three bathrooms retain exquisite mid-century tile, preserving the authentic charm of the era. The home's signature board and batten detailing, along with distinctive beam ends, are a testament to Kaptur's innovative design vision. The elegant slate flooring seamlessly merges indoor and outdoor spaces, enhancing the home's natural flow. The property is a haven for those who love to entertain, featuring multiple outdoor areas perfect for gatherings, alongside a tranquil koi pond that adds a touch of serenity to the landscape. The kitchen has been thoughtfully upgraded by Kaptur in 2011 to cater to contemporary living while retaining the home's original character. Hugh M, Kaptur, celebrated for his contributions to the Palm Springs architectural landscape, is known for creating spaces that are both functional and artistically significant while creating his objective of ''quiet elegance.'' This home is not just a residence; it's a piece of architectural history waiting to be cherished by its next owner.
Show MoreShow Less
Gregg Fletcher

Gregg Fletcher

Principal
Phone

7608440110

FEATURES & AMENITIES

Interior

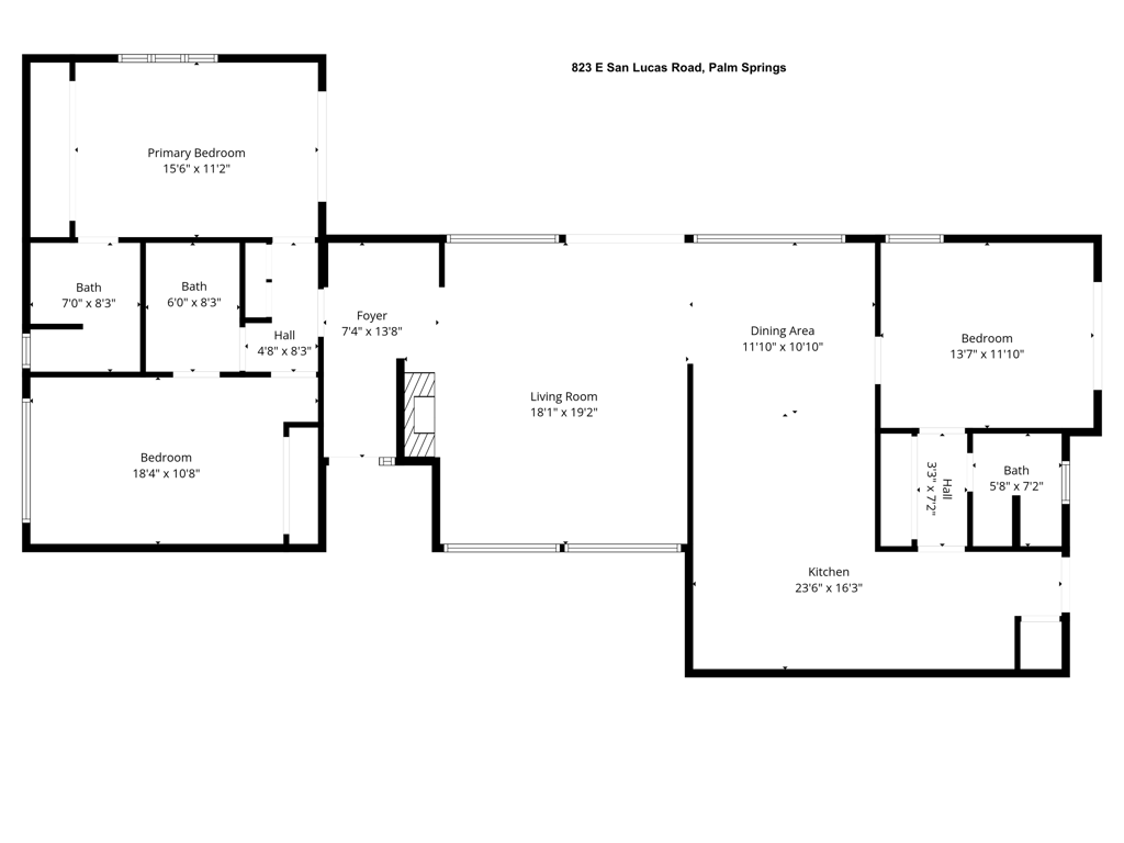
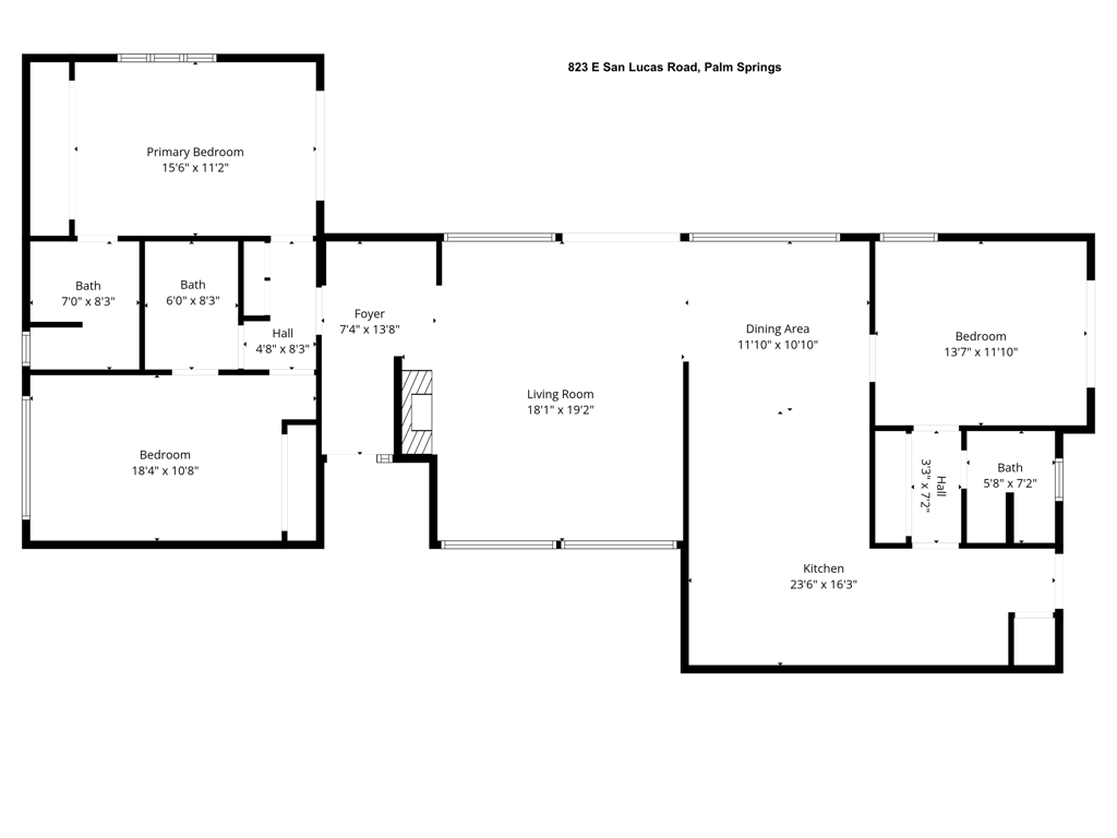
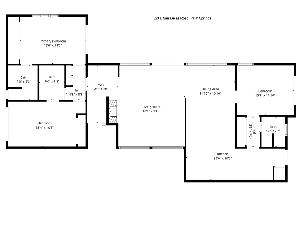
  • Total Bedrooms3
  • Total Bathrooms3
  • Full Bathrooms3
  • Laundry roomLaundry Closet
  • FlooringCarpet, Tile
  • FireplaceGas, Living Room, Raised Hearth
  • APPLIANCESConvection Oven, Dishwasher, Electric Oven, Freezer, Gas Cooktop, Disposal, Gas Water Heater, Ice Maker, Microwave, Refrigerator, Range Hood, Self Cleaning Oven, Vented Exhaust Fan, Water To Refrigerator
  • other interior FeaturesBeamed Ceilings, Breakfast Bar, Dry Bar, Separate/Formal Dining Room, Open Floorplan, Recessed Lighting, Track Lighting, Bar, All Bedrooms Down, Main Level Primary

Area & Lot

  • Status Sold
  • Living Area1,711 Sq.Ft.
  • Lot Area0.27 Acres
  • MLS® ID219137183DA
  • TypeResidential
  • YEAR BUILT1958
  • View DescriptionMountain(s)
  • Elementary SchoolCahuilla
  • Middle SchoolRaymond Cree
  • High SchoolPalm Springs
  • School DistrictPalm Springs Unified

Exterior

  • STORIES1
  • Garage Spaces2.0
  • PoolGunite, Electric Heat, In Ground, Salt Water
  • lot featuresBack Yard, Corner Lot, Front Yard, Landscaped, Yard
  • parkingCircular Driveway, Driveway, Garage, Garage Door Opener, Other, On Street, Side By Side
  • HEAT TYPECentral, Forced Air, Natural Gas
  • AIR CONDITIONINGCentral Air, Electric, Zoned
  • SubstructureSlab
  • security FeaturesFire Detection System, Smoke Detector(s), Security Lights
  • other exterior FeaturesKoi Pond

Financial

  • Sales Price$1,435,000
  • Zoning R-1

Work With Me

Gregg’s extensive market contacts and rich local knowledge help ensure consistently successful transactions. His clients, many of whom are celebrities, business leaders, notable personalities, and local families, benefit from his strict adherence to confidentiality and professionalism.

Let's Connect

Follow Me on Instagram